
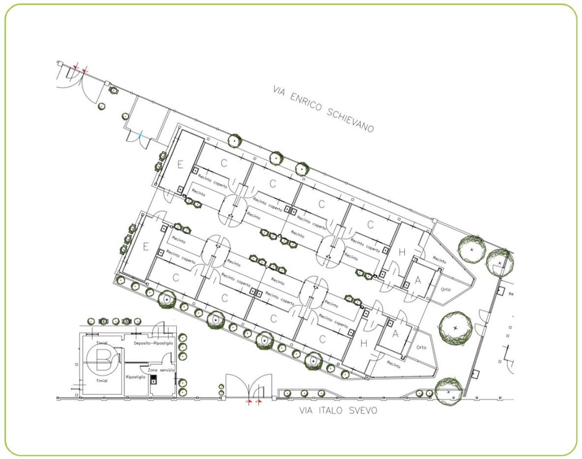
I mici dei reparti interessati alla ristrutturazione delle prime due strutture.
Per chi conosce il rifugio recintone, anziani e timidi - nel progetto identificati con sigle F e B - sono stati spostati in altre aree o messi temporaneamente in pensione!
E si è partiti con sostituzione della copertura degli edifici A, B e C realizzando la nuova copertura in lamiera rossa coibentata.







